1870 Desert Forest Way
Henderson, NV 89012

Scroll to Content

Images

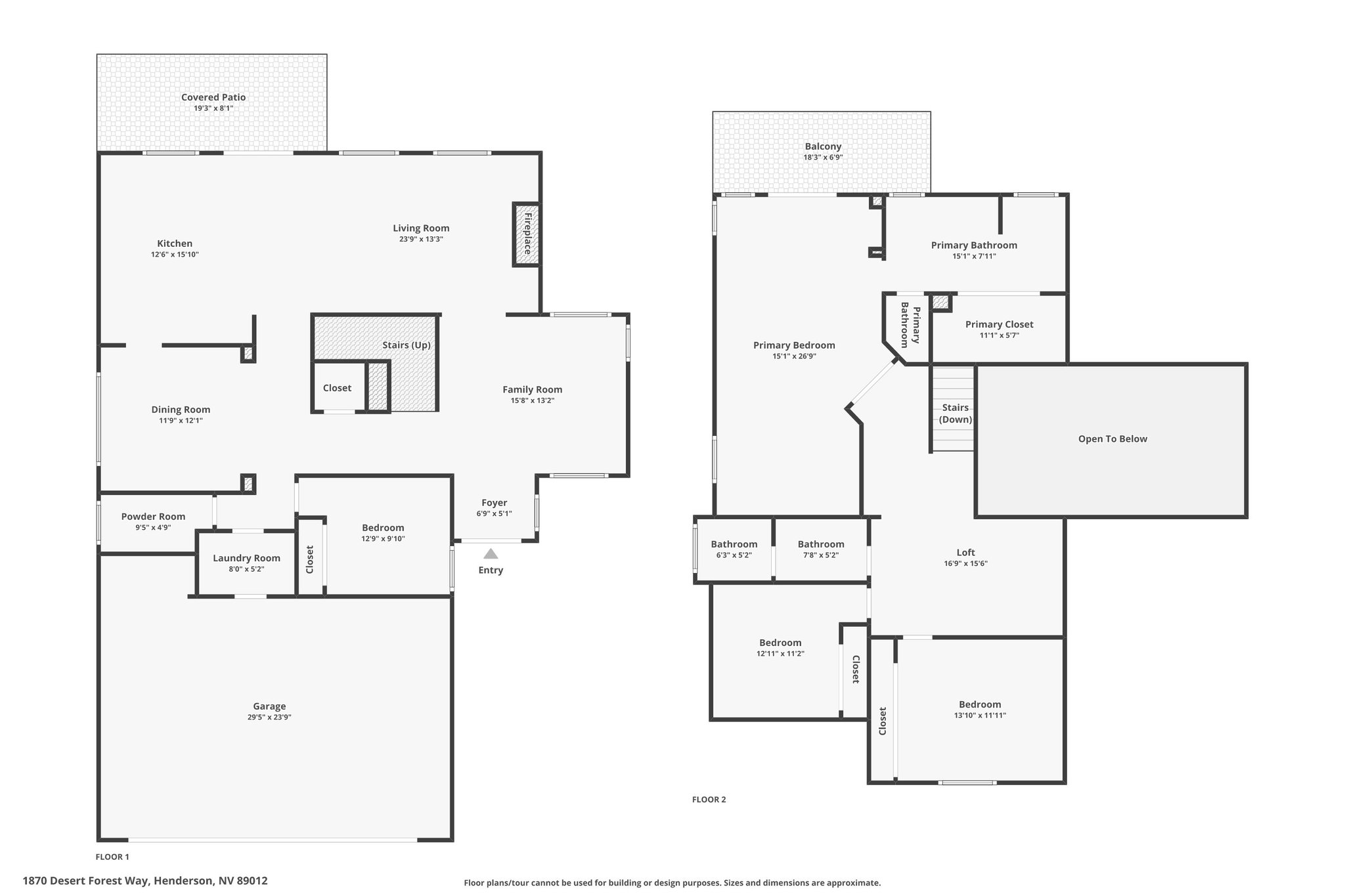
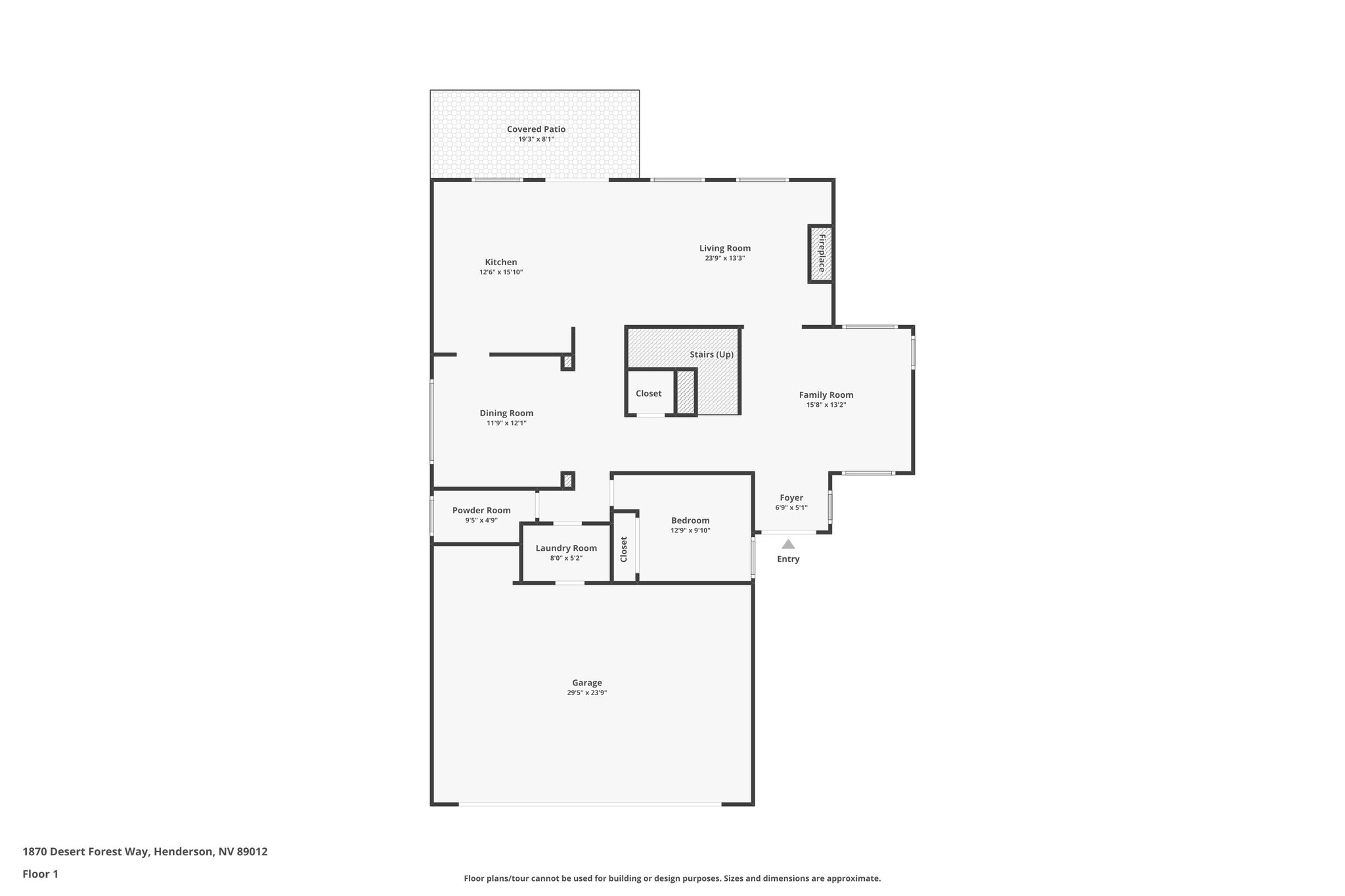
Floor Plans

3D Tour

Contact

Feel free to contact us for more details!

Ryan Crighton

Ryan Crighton

Rothwell Gornt Companies

(702) 217-1048

[email protected]